Przytulny apartament pośród zieleni

lokalizacja: Gdańsk, Wichrowe Wzgórze

925 000,00 PLN

14 496,16 PLN

Opis nieruchomości

Przytulny apartament w otoczeniu zieleni, komfort, design i nowoczesny styl życia


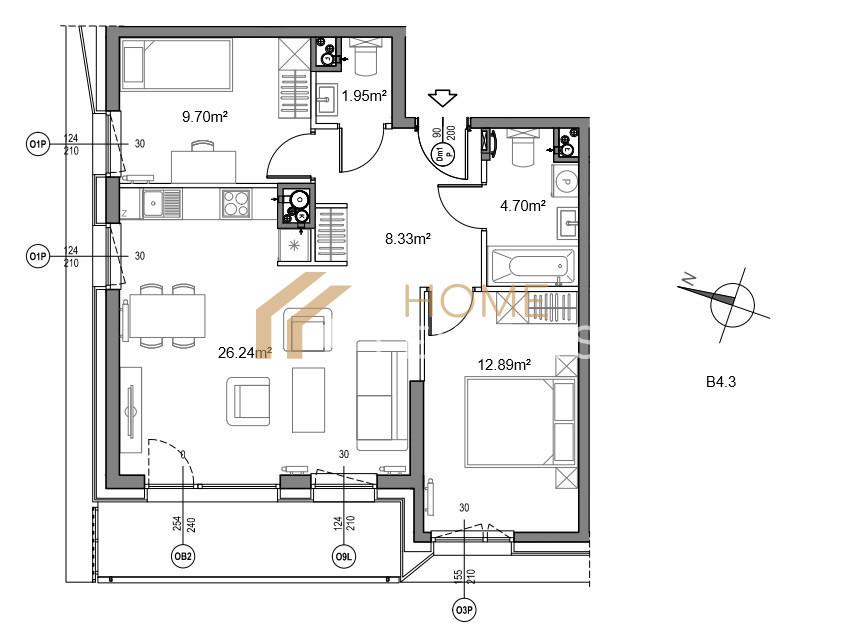
Na 63,81 m² zaprojektowano przestrzeń, w której nowoczesna architektura spotyka się z komfortem codziennego życia. Trzy pokoje, idealnie wyważone proporcje i konsekwentna funkcjonalność tworzą wnętrze, które odpowiada na potrzeby osób ceniących jakość, spokój i estetykę.

Sercem apartamentu jest elegancka strefa dzienna o powierzchni 26,24 m². Salon z aneksem kuchennym, naturalnie doświetlony dzięki ekspozycji północno-zachodniej. Miękkie, popołudniowe światło buduje atmosferę sprzyjającą wyciszeniu, a bezpośrednie wyjście na loggię zaprasza do chwil relaksu w otoczeniu zieleni.

Dwie sypialnie - główna 12,89 m² oraz druga 9,70 m² - zostały zaprojektowane jako prywatne odosobnione miejsce. Komfort codziennego funkcjonowania podnoszą łazienka oraz oddzielne WC, a także przestronny przedpokój, umożliwiający elegancką zabudowę.

Rozkład pomieszczeń

Salon z aneksem kuchennym - 26,24 m²

Sypialnia - 12,89 m²

Sypialnia / gabinet - 9,70 m²

Przedpokój - 8,33 m²

Łazienka - 4,70 m²

WC - 1,95 m²

Powierzchnia apartamentu: 63,81 m²
Loggia: 7,92 m²
Ekspozycja: północno-zachodnia

Apartament znajduje się w budynku zaprojektowanym jako prywatna, wielofunkcyjna przestrzeń dla mieszkańców, w której komfort nie kończy się na samym mieszkaniu. Do dyspozycji właścicieli pozostają starannie zaprojektowane strefy wspólne:

reprezentacyjny ogród wertykalny biegnący przez całą klatkę schodową

prywatna siłownia dostępna wyłącznie dla mieszkańców

profesjonalna sala do pilatesu z reformerami

wyciszona strefa mindfulness

nowoczesna przestrzeń co-workingowa

elegancka strefa wypoczynku z bilardem i miejscem spotkań

wewnętrzna bawialnia dla dzieci

ogród sensoryczny sprzyjający regeneracji i odpoczynkowi

Całość dopełnia wyjątkowa lokalizacja — bezpośrednie sąsiedztwo lasów i Trójmiejskiego Parku Krajobrazowego, a jednocześnie bliski dostęp do PKM, zapewniający szybkie połączenie z centrum Trójmiasta. Codzienną wygodę gwarantuje również sklep Żabka w budynku.


Istnieje możliwość dokupienia miejsc postojowych w hali garażowej z możliwością zainstalowania stacji ładowania pojazdów elektrycznych.


To propozycja dla tych, którzy cenią sobie bliskość natury bez obowiązku wyjazdu z miasta.

Kontakt do opiekuna:

Home Experts

Mikołaj Węgrzynowski
Nieprawidłowy adres E-mail
Mapa

Strona korzysta z plików cookie w celu realizacji usług zgodnie z Polityką prywatności. Możesz określić warunki przechowywania lub dostępu do cookie w Twojej przeglądarce.